Ontdek de perfecte plek voor uw droomhuis op het platteland op dit uitzonderlijke perceel van 14.780 m², compleet met een volledig goedgekeurde bouwvergunning. Dit is een mooie kans om een gelijkvloerse woning te bouwen die is ontworpen voor modern comfort en rustig wonen op het platteland, waardoor u maanden aan planning en goedkeuringen bespaart.
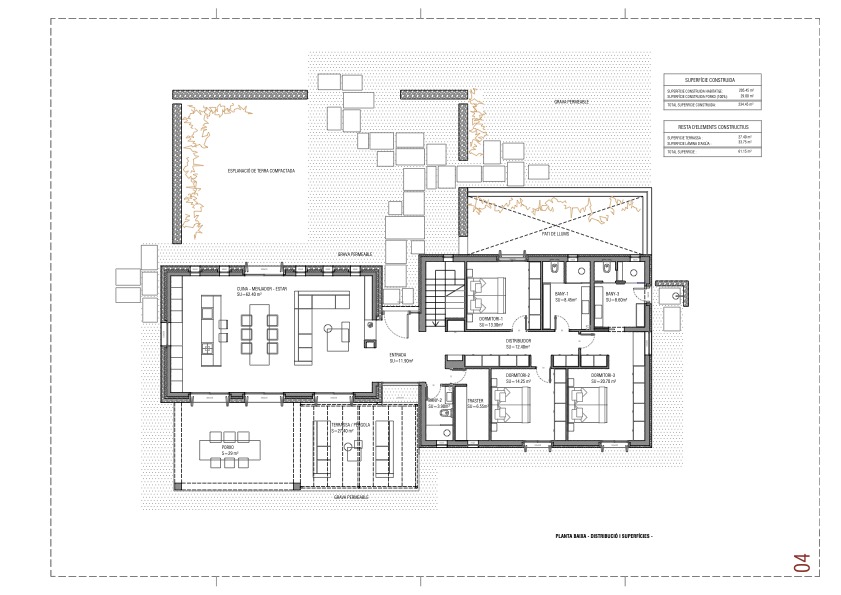
Het doordachte project met een bebouwde oppervlakte van 234 m² heeft een ruime open indeling, waarbij de eet- en woonkamer naadloos aansluiten op de moderne keuken. In de gezellige woonkamer kunt u met uw dierbaren samenkomen bij de warmte van een knapperend haardvuur. De plannen omvatten drie royale slaapkamers en twee complete badkamers, die voldoende ruimte bieden voor familie en gasten, plus een handig gastentoilet. Een speciale berging zorgt ervoor dat alles zijn plaats heeft.
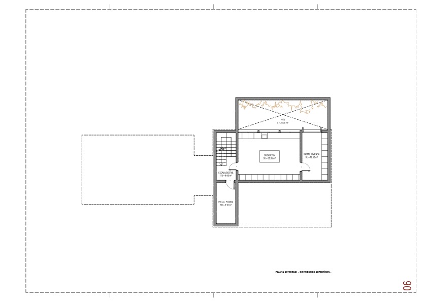
Een van de opvallende kenmerken van dit ontwerp is de ruime kelder, een veelzijdige ruimte die kan worden aangepast aan uw levensstijl. Creëer de ultieme thuisgym, een ontspannende sauna, een wijnkelder voor uw collectie, of geniet gewoon van een overvloed aan extra opslagruimte.
Stap naar buiten en omarm de rust van uw privé-oase. Het ontwerp omvat verschillende charmante pergola’s, een zwembad van 34 m² en een groot overdekt terras, perfect voor ?al fresco? dineren, koffie in de ochtend of gewoon om te ontspannen terwijl u geniet van de rustige omgeving. Mooie stenen muren voegen een vleugje rustieke elegantie




















































