In the heart of the Mallorcan countryside, in the ???? area of Son Mesquida in Felanitx, lies this magnificent rustic plot with a project for the construction of an exclusive detached home?ideal for those seeking privacy, nature, and comfort.
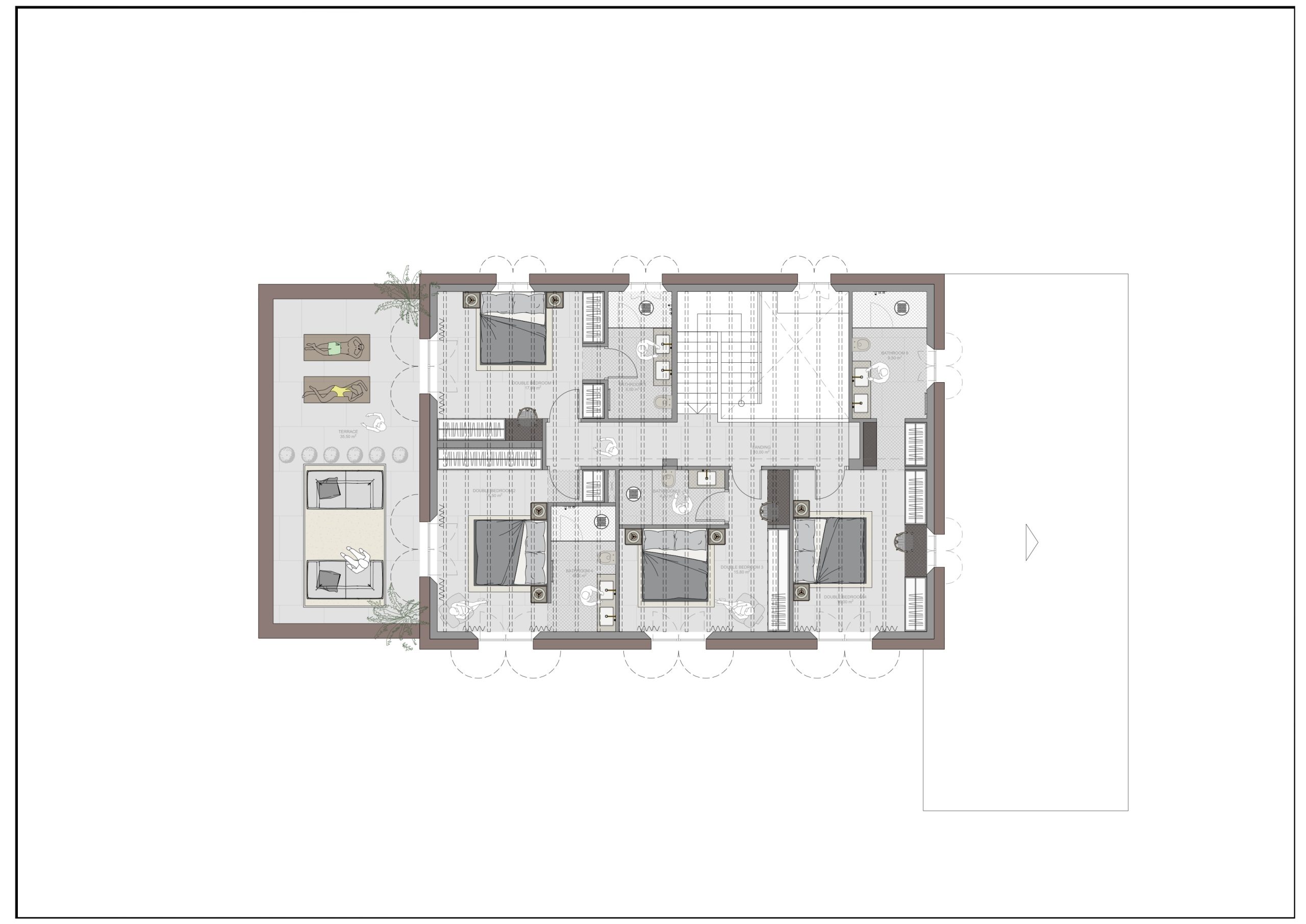
The project envisions an elegant 406 m² house spread over two floors, designed to blend harmoniously with its surroundings. On the ground floor, there are two spacious bedrooms with en-suite bathrooms, as well as a bright open-plan living area combining the lounge, dining room, and kitchen with a central island. This level is completed by a practical pantry and a guest toilet.
The upper floor houses three additional bedrooms, all with en-suite bathrooms. The standout feature is the master suite, which also includes a walk-in wardrobe and direct access to a large private terrace?perfect for enjoying the unobstructed views.
Outside, the property offers a spectacular 42 m² covered terrace, ideal for al fresco dining all year round. Next to the pool, a cozy barbecue area with a bathroom is planned, creating the perfect space for leisure and entertainment.
The plot, fully enclosed by natural stone walls, guarantees maximum privacy and is surrounded by abundant native vegetation, giving it an authentic Mediterranean character. It also features its own well, a valuable asset for this type of property.
A unique opportunity to build the home of your dreams in a privileged setting where tranquility and nature take center stage.
Location of the property:
Felanitx is one of the towns with the most character and authenticity in the southeast of Mallorca. Surrounded by vineyards, fields, and rolling hills, this historic town combines Mallorcan tradition, excellent infrastructure, and a privileged location, making it highly attractive both as a place to live and as an investment destination.
Known for its heritage, winemaking tradition, and iconic weekly market, Felanitx offers an authentic quality of life with all essential daily amenities, including shops, restaurants, schools, medical services, and a vibrant local life throughout the year. Its historic center, with charming streets and traditional architecture, reflects the true soul of Mallorca.
One of Felanitx?s great advantages is its excellent connection to some of the island?s most sought-after destinations. Just a few minutes away are coastal areas such as Portocolom, one of Mallorca?s most beautiful natural harbors, as well as the coves and beaches of the southeast coast, including areas near Cala d'Or.
From a real estate perspective, Felanitx offers a wide variety of opportunities, from elegant townhouses in the historic center and rustic fincas with land, to building plots for new development projects. Demand for properties in this area continues to grow, driven by buyers who value authenticity, privacy, and proximity to the sea, which also contributes to strong potential for value appreciation.
Felanitx is ideal for those looking to combine the tranquility of inland Mallorca with quick access to the coast, while enjoying an authentic, well-connected setting with excellent prospects for developing a property project or finding a home with long-term value.
Features
- Absolute privacy
- License of the basic project
- Well
Request
- default
- default



































































