Ubicado en el encantador entorno rural de Felanitx, este atractivo terreno ofrece una excelente oportunidad para construir una vivienda de estilo rústico que combina tradición, confort y diseño contemporáneo, además de disfrutar de privilegiadas vistas al emblemático monasterio de Sant Salvador.
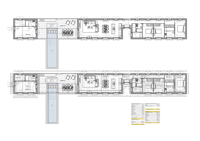
El proyecto contempla la construcción de una elegante casa de una sola planta, que dispondrá de tres amplios dormitorios y tres baños, uno de ellos en suite, todos ellos con salida directa a la terraza.
El corazón de la casa será un luminoso y diáfano módulo que alberga una moderna cocina abierta con isla central, un acogedor comedor y una sala de estar con chimenea, creando un ambiente cálido y funcional.
En el exterior, la propiedad ofrecerá un entorno pensado para disfrutar del clima mediterráneo, con una gran pérgola perfecta para comidas al aire libre, una piscina privada y un cuidado espacio de descanso. Junto a la piscina se proyecta un edificio anexo que incluye sala de máquinas, un baño adicional y un espacio polivalente, adaptable a diferentes necesidades como gimnasio, despacho o zona de invitados.
Ubicación del inmueble:
La adquisición de un terreno edificable en Felanitx, Mallorca, resulta especialmente atractiva para compradores e inversores inmobiliarios por diversos motivos.
Felanitx combina el auténtico encanto mallorquín con una ubicación estratégicamente privilegiada en el este de la isla. La localidad cuenta con una infraestructura bien desarrollada, que incluye colegios, comercios, restaurantes y mercados tradicionales, mientras que su entorno natural ofrece tranquilidad, amplitud y un alto grado de privacidad.
Un terreno edificable en esta zona abre un amplio abanico de posibilidades: ya sea para la construcción de una vivienda unifamiliar a medida, una exclusiva residencia vacacional o un proyecto de alquiler con alta rentabilidad. Gracias a su proximidad a codiciadas zonas costeras como Cala d?Or y a las espectaculares playas de la costa este, la propiedad puede destinarse tanto a uso privado como a una inversión rentable.
Además, Felanitx destaca por su notable potencial de revalorización. La demanda de terrenos edificables en Mallorca se mantiene elevada, especialmente en zonas que logran un equilibrio entre el entorno rural y una buena conexión con servicios e infraestructuras. De este modo, los compradores se benefician de una inversión sólida a largo plazo, junto con la posibilidad de diseñar una propiedad totalmente adaptada a sus preferencias.
En resumen, un terreno edificable en Felanitx es la opción ideal para quienes buscan desarrollar un proyecto inmobiliario personalizado en un entorno auténtico, con excelente infraestructura, cercanía a algunas de las mejores playas de la isla y atractivas perspectivas de revalorización.







